Verkocht onder voorbehoud:Visartstraat 14, 4541 BB Sluiskil - Foto
Verkocht onder voorbehoud
+16

Visartstraat 14 4541 BB Sluiskil € 219.000,- k.k.

  • Woonhuis
  • 4 kamers
  • 3 slaapkamers
  • 1 badkamers
  • Bouwjaar 1963
  • 146 m² perceeloppervlakte
  • 85 m² gebruiksoppervlakte
  • C Energielabel C

Beschrijving

Ruime eengezinswoning met aangebouwde keuken, berging, extra brede garage én 8 zonnepanelen

In keurige staat verkerende eengezinswoning aan een rustige straat in Sluiskil. De woning heeft een fijne indeling, extra brede garage, onderhoudsvrije tuin én is de afgelopen jaren op belangrijke punten vernieuwd.

Pluspunten op een rij:
• Geheel voorzien van kunststof kozijnen met triple glas (recent vernieuwd)
• Rolluiken aanwezig voor extra comfort en veiligheid
• 8 zonnepanelen – lagere energielasten
• Gedeeltelijk domotica aanwezig
• Dak geïsoleerd en nieuw energielabel in aanvraag
• Onderhoudsvrije tuin op het zuiden
• Extra brede garage en aparte berging

Keuken en badkamer zijn eenvoudig, maar geven je de mogelijkheid om deze volledig naar eigen smaak en wensen te moderniseren.

Indeling woning

Begane grond
• Hal met tegelvloer, meterkast (4 groepen + aardlekschakelaars), geheel betegeld toilet, kelderkast en trap naar de eerste verdieping.
• L-vormige woonkamer met laminaatvloer en rolluik aan de achterzijde.
• Dichte, aangebouwde keuken met tuindeur naar de achtertuin. Apparatuur: gasfornuis, oven, afzuigkap en koelkast.

1e verdieping
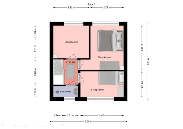
• Overloop met toegang naar 3 slaapkamers .
• Badkamer met douche (thermostaatkraan) en wastafelmeubel.

Zolder
• Bergzolder bereikbaar via vlizotrap, voorzien van CV-combiketel (ATAG CW4, bouwjaar 2014).

Tuin

• Onderhoudsvrije, geheel betegelde achtertuin op het zuiden met achterom.
• Afgesloten met een hek.

Garage & berging

• Extra brede garage met roldeur en zijramen met rolluiken.
• Stenen berging met elektra.

Wonen in Sluiskil

Sluiskil is een gezellig dorp met voorzieningen zoals een grote supermarkt, bakker, slager, basisschool en diverse restaurants. Vanuit hier zit je bovendien snel op de uitvalswegen:

• Zelzate: ca. 10 minuten
• Terneuzen: ca. 10 minuten
• Middelburg: ca. 35 minuten
• Gent: ca. 30 minuten
• Antwerpen: ca. 50 minuten
Ideaal voor wie rustig wil wonen met toch goede bereikbaarheid naar zowel Zeeuwse steden als België.

Deze woning combineert comfort, energiebesparing en ruimte – met nog volop mogelijkheden om er je eigen droomwoning van te maken.

De WoonClub
De Makelaar van Zeeuws Vlaanderen.

Kaart

Kenmerken

Overdracht

Referentienummer
05484
Vraagprijs
€ 219.000,- k.k.
Status
Verkocht onder voorbehoud
Aanvaarding
In overleg
Aangeboden sinds
Zaterdag 13 september 2025
Laatste wijziging
Vrijdag 26 december 2025

Bouw

Type object
Woonhuis, eengezinswoning, tussenwoning
Soort bouw
Bestaande bouw
Bouwperiode
1963
Dakbedekking
Dakpannen
Type dak
Zadeldak
Isolatievormen
Dakisolatie
Driedubbel glas

Oppervlaktes en inhoud

Perceeloppervlakte
146 m²
Woonoppervlakte
85 m²
Inhoud
335 m³
Oppervlakte overige inpandige ruimten
20 m²
Oppervlakte externe bergruimte
26 m²

Indeling

Aantal bouwlagen
3
Aantal kamers
4 (waarvan 3 slaapkamers)
Aantal badkamers
1 (en 1 apart toilet)

Locatie

Ligging
Aan rustige weg
Aan vaarwater
Beschutte ligging
Dichtbij openbaar vervoer
In woonwijk
Nabij school
Nabij snelweg
Platteland
Zelfstandig

Tuin

Type
Voortuin
Oriëntering
Noorden
Staat
Normaal
Tuin 2 - Type
Achtertuin
Tuin 2 - Hoofdtuin
Ja
Tuin 2 - Oriëntering
Zuiden
Tuin 2 - Heeft een achterom
Ja
Tuin 2 - Staat
Normaal

Energieverbruik

Energielabel
C

CV ketel

CV ketel
Atag
Warmtebron
Gas
Bouwjaar
2014
Combiketel
Ja
Eigendom
Eigendom

Uitrusting

Warm water
CV-ketel
Verwarmingssysteem
Centrale verwarming
Badkamervoorzieningen
Douche
Wastafel
Parkeergelegenheid
Aangebouwde stenen garage
Tuin aanwezig
Ja
Heeft een garage
Ja
Heeft domotica
Ja
Heeft schuur/berging
Ja
Heeft zonnepanelen
Ja

Kadastrale gegevens

Kadastrale aanduiding
Terneuzen G 3192
Perceeloppervlakte
146 m²
Omvang
Geheel perceel
Eigendomsituatie
Eigen grond

Media

Plattegronden