Nieuw in verkoop:Dinsdagstraat 26, 4524 AN Sluis - Foto
Nieuw in verkoop
+20

Dinsdagstraat 26 4524 AN Sluis € 289.000,- k.k.

  • Woonhuis
  • 3 kamers
  • 2 slaapkamers
  • 1 badkamer
  • Bouwjaar 1948
  • 393 m² perceeloppervlakte
  • 81 m² gebruiksoppervlakte

Beschrijving

Wonen in het historische hart van Zeeuws-Vlaanderen, met charme, rust en volop mogelijkheden — dat is precies wat deze gezellige tussenwoning aan de Dinsdagstraat 26 te bieden heeft.

Deze sfeervolle woning staat op een verrassend ruim perceel van maar liefst 393 m² eigen grond en beschikt over een vrijstaande garage, ideaal voor de hobbyist, extra opslag of het veilig stallen van uw auto of fietsen.

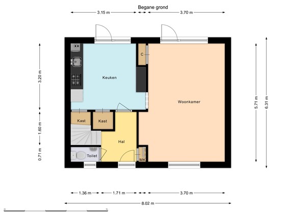
Binnen treft u een gezellige woonkamer met schuifpui, waardoor binnen en buiten op een natuurlijke manier in elkaar overlopen. De schuifpui zorgt voor veel lichtinval en geeft direct toegang tot de tuin — een heerlijke plek om in alle rust van het buitenleven te genieten.

Op de eerste verdieping bevinden zich twee slaapkamers en een eenvoudige badkamer met douche, waardoor deze woning een fijne basis vormt voor starters, kleine gezinnen of mensen die op zoek zijn naar een woning die zij geheel naar eigen smaak kunnen moderniseren.

Wonen in Sluis
Sluis is een van de parels van Zeeuws-Vlaanderen. Deze karaktervolle vestingstad kent een rijke geschiedenis die teruggaat tot de middeleeuwen, toen Sluis uitgroeide tot een belangrijke handelsplaats aan zee. Nog altijd ademt de stad historie, met haar oude stadspoorten, sfeervolle straatjes en het bekende Belfort — het enige belfort van Nederland. Tegelijkertijd is Sluis levendig en gezellig, met een uitgebreid aanbod aan winkels, restaurants en terrassen, en bovendien op korte afstand van de Zeeuwse kust en België.

Kortom: een woning met potentie, een ruim perceel met garage én gelegen op een unieke plek in historisch Sluis. Een heerlijke plek om thuis te komen.

De WoonClub
De Makelaar van Zeeuws Vlaanderen

Kaart

Kenmerken

Overdracht

Referentienummer
05522
Vraagprijs
€ 289.000,- k.k.
Status
Nieuw in verkoop
Aanvaarding
In overleg
Aangeboden sinds
Maandag 27 april 2026

Bouw

Type object
Woonhuis, eengezinswoning, tussenwoning
Soort bouw
Bestaande bouw
Bouwperiode
1948
Dakbedekking
Dakpannen
Type dak
Zadeldak
Isolatievormen
Grotendeels dubbel glas
Spouwmuren

Oppervlaktes en inhoud

Perceeloppervlakte
393 m²
Woonoppervlakte
81 m²
Inhoud
270 m³
Oppervlakte externe bergruimte
30 m²

Indeling

Aantal bouwlagen
2
Aantal kamers
3 (waarvan 2 slaapkamers)
Aantal badkamers
1 (en 1 apart toilet)

Locatie

Ligging
Aan rustige weg
Beschutte ligging
Dichtbij openbaar vervoer
In centrum
In woonwijk
Nabij school
Zelfstandig

Tuin

Type
Achtertuin
Hoofdtuin
Ja
Oriëntering
Zuiden
Heeft een achterom
Ja
Staat
Normaal

CV ketel

CV ketel
Vaillant
Warmtebron
Gas
Bouwjaar
2013
Combiketel
Ja
Eigendom
Eigendom

Uitrusting

Warm water
CV-ketel
Verwarmingssysteem
Centrale verwarming
Badkamervoorzieningen
Douche
Wastafel
Parkeergelegenheid
Vrijstaande stenen garage
Tuin aanwezig
Ja
Heeft een garage
Ja
Heeft schuur/berging
Ja
Heeft zonwering
Ja

Kadastrale gegevens

Kadastrale aanduiding
Sluis I 2572
Perceeloppervlakte
393 m²
Omvang
Geheel perceel
Eigendomsituatie
Eigen grond

Media

Plattegronden