Nieuw in verkoop:Tramstraat 5, 4551 EH Sas van Gent - Foto
Nieuw in verkoop
+11

Tramstraat 5 4551 EH Sas van Gent € 159.000,- k.k.

  • Woonhuis
  • 4 kamers
  • 3 slaapkamers
  • 1 badkamers
  • Bouwjaar 1920
  • 102 m² perceeloppervlakte
  • 75 m² gebruiksoppervlakte
  • D Energielabel D

Beschrijving

Betaalbaar wonen met ruimte en comfort

Ben je op zoek naar een betaalbare instapwoning waar je zó in kunt? Dan is deze eenvoudige tussenwoning aan de Tramstraat absoluut een bezichtiging waard. Een praktische indeling, drie slaapkamers en onderhoudsvriendelijke voorzieningen maken dit een ideale woning voor starters, jonge gezinnen of iedereen die comfortabel wil wonen voor een leuke prijs.

De begane grond beschikt over een lichte woonkamer met voldoende ruimte voor een gezellige zit- en eethoek. Aansluitend vind je de keuken en de badkamer.

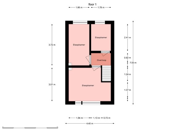
Op de verdieping zijn drie volwaardige slaapkamers aanwezig. Dankzij de kunststof kozijnen met dubbel glas woon je hier onderhoudsarm. Dat scheelt tijd én kosten.

Ook buiten zit je goed: de tuin is onderhoudsvriendelijk en biedt een fijne plek om te ontspannen of gezellig buiten te zitten.

Fijne ligging

Wonen in Sas van Gent betekent genieten van een bourgondische sfeer, gezelligheid en een rijke carnavalstraditie. Supermarkt, winkels en dagelijkse voorzieningen liggen op korte afstand. Bovendien ben je binnen enkele minuten in Zelzate of Gent. Ideaal als je werkt in België of daar graag winkelt en uitgaat.

Pluspunten

3 slaapkamers

Kunststof kozijnen met dubbel glas

Tuin met privacy

Voorzieningen op loopafstand

Snelle verbinding richting België

De WoonClub
De Makelaar van Zeeuws Vlaanderen

Kaart

Kenmerken

Overdracht

Referentienummer
05508
Vraagprijs
€ 159.000,- k.k.
Status
Nieuw in verkoop
Aanvaarding
In overleg
Aangeboden sinds
Dinsdag 3 februari 2026

Bouw

Type object
Woonhuis, eengezinswoning, tussenwoning
Soort bouw
Bestaande bouw
Bouwperiode
1920
Dakbedekking
Bitumen
Type dak
Platdak
Isolatievormen
Dubbel glas

Oppervlaktes en inhoud

Perceeloppervlakte
102 m²
Woonoppervlakte
75 m²
Inhoud
300 m³
Oppervlakte externe bergruimte
6 m²

Indeling

Aantal bouwlagen
2
Aantal kamers
4 (waarvan 3 slaapkamers)
Aantal badkamers
1

Locatie

Ligging
Aan rustige weg
Dichtbij openbaar vervoer
In centrum
In woonwijk
Nabij school
Platteland
Zelfstandig

Tuin

Type
Achtertuin
Oriëntering
Zuiden
Heeft een achterom
Ja
Staat
Verwaarloosd

Energieverbruik

Energielabel
D

CV ketel

CV ketel
Intergas
Warmtebron
Gas
Bouwjaar
2015
Combiketel
Ja
Eigendom
Eigendom

Uitrusting

Warm water
CV-ketel
Verwarmingssysteem
Centrale verwarming
Badkamervoorzieningen
Douche
Ligbad
Toilet
Wastafelmeubel
Tuin aanwezig
Ja

Kadastrale gegevens

Kadastrale aanduiding
Sas van Gent C 2824
Perceeloppervlakte
102 m²
Omvang
Geheel perceel
Eigendomsituatie
Eigen grond

Media

Foto's

Plattegronden