Verkocht:Romanlaan 8, 4527 BE Aardenburg - Foto
Verkocht
+25

Romanlaan 8 4527 BE Aardenburg

  • Woonhuis
  • 6 kamers
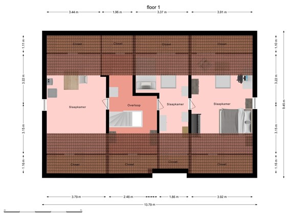
  • 5 slaapkamers
  • 1 badkamers
  • Bouwjaar 1977
  • 704 m² perceeloppervlakte
  • 155 m² gebruiksoppervlakte
  • C Energielabel C

Beschrijving

Bent u op zoek naar rust, ruimte en comfort op een prachtige locatie? Dan is deze vrijstaande semi-bungalow in Aardenburg precies wat u zoekt. Gelegen op een royaal perceel van 704 m², met een woonoppervlakte van 155 m² en een garage van 25 m², biedt deze woning alles voor prettig en levensloopbestendig wonen.

De woning is volledig rolstoelvriendelijk en voorzien van spouw- en dakisolatie. Binnen treft u een ruime woonkamer met uitzicht op de tuin, een nette keuken, meerdere slaapkamers, een comfortabele badkamer en volop bergruimte. Alles gelijkvloers én goed onderhouden.

De ligging is bijzonder: landelijk, met veel privacy en toch dicht bij alles wat Zeeland en België te bieden hebben. De historische kern van Aardenburg – de oudste stad van Zeeland – ligt op loopafstand. Brugge bereikt u binnen 25 minuten, Knokke en de stranden van Cadzand binnen 20 minuten.

Pluspunten van deze woning:

* Vrijstaande semi-bungalow op 704 m² eigen grond
* 155 m² woonoppervlakte
* Grote garage van 25 m²
* Rolstoeltoegankelijk
* Landelijk gelegen
* Centrale ligging t.o.v. Brugge, Knokke en de kust

Zoekt u een ruime, comfortabele woning met een rustige ligging én uitstekende bereikbaarheid? Dan is dit uw kans.

De WoonClub.
De Makelaar van Zeeuws- Vlaanderen.

Kaart

Kenmerken

Overdracht

Vraagprijs
€ 429.000,- k.k.
Status
Verkocht
Aanvaarding
In overleg
Aangeboden sinds
Donderdag 22 mei 2025
Laatste wijziging
Zaterdag 1 november 2025

Bouw

Type object
Woonhuis, eengezinswoning, vrijstaande woning
Soort bouw
Bestaande bouw
Toegankelijkheid
Mindervaliden
Senioren
Bouwperiode
1977
Dakbedekking
Dakpannen
Type dak
Schilddak
Keurmerken
Aangepaste woning
Isolatievormen
Dakisolatie
Gedeeltelijk dubbel glas
Muurisolatie
Spouwmuren

Oppervlaktes en inhoud

Perceeloppervlakte
704 m²
Woonoppervlakte
155 m²
Inhoud
650 m³
Oppervlakte overige inpandige ruimten
60 m²
Oppervlakte externe bergruimte
25 m²

Indeling

Aantal bouwlagen
2
Aantal kamers
6 (waarvan 5 slaapkamers)
Aantal badkamers
1 (en 1 apart toilet)

Locatie

Ligging
Aan rustige weg
Beschutte ligging
Dichtbij openbaar vervoer
In woonwijk
Nabij school
Platteland
Zelfstandig

Tuin

Type
Voortuin
Oriëntering
Zuiden
Staat
Prachtig aangelegd
Tuin 2 - Type
Achtertuin
Tuin 2 - Hoofdtuin
Ja
Tuin 2 - Oriëntering
Noorden
Tuin 2 - Heeft een achterom
Ja
Tuin 2 - Staat
Prachtig aangelegd

Energieverbruik

Energielabel
C

CV ketel

CV ketel
Vaillant
Warmtebron
Gas
Bouwjaar
2025
Combiketel
Ja
Eigendom
Eigendom

Uitrusting

Warm water
CV-ketel
Verwarmingssysteem
Centrale verwarming
Badkamervoorzieningen
Inloopdouche
Toilet
Wastafel
Parkeergelegenheid
Aangebouwde stenen garage
Tuin aanwezig
Ja
Heeft een garage
Ja

Kadastrale gegevens

Kadastrale aanduiding
Sluis E 2915
Perceeloppervlakte
704 m²
Omvang
Geheel perceel
Eigendomsituatie
Eigen grond